Oferty
Zapoznaj się z dostępnością naszych nieruchomości
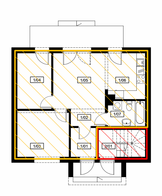
Mieszkanie 01
Mieszkanie 53m2 bezczynszowe z ogrodem –
Zabrze Grzybowice, ul. Rozwadowskiego
Prezentujemy Państwu wyjątkową ofertę sprzedaży mieszkania bezczynszowego o powierzchni
52,97 m², położonego w spokojnej i zielonej części Zabrza – Grzybowicach, przy ul.
Rozwadowskiego .
To idealna propozycja dla osób ceniących ciszę, komfort i nowoczesne rozwiązania mieszkaniowe.
🏠 Układ pomieszczeń:
• Wiatrołap 1/01 – 3,40 m²
• Hol 1/02 – 2,80 m²
• Pokój 1 1/03 – 6,78 m²
• Pokój 2 1/04 – 8,82 m²
• Salon z aneksem kuchennym 1/05 i 1/06 –22, 21 m²
• Łazienka 1/07 – 4,27 m²
Do każdego mieszkania przynależy jedno miejsce parkingowe oraz ogród,
idealny na odpoczynek po pracy czy weekendowe spotkania w gronie rodziny i
przyjaciół.
✅ Najważniejsze atuty:
• Pełna własność – bez pośredników, prosto od dewelopera
• Bez czynszu! – oszczędność nawet kilkuset złotych miesięcznie
• Ogród i miejsce parkingowe w cenie
• Nowoczesny standard wykonania
• Termin oddania: III/IV kwartał 2025 r.
• Ceny mieszkań już od 499 000 zł
Dodatkowym atutem
okolicy jest Geopark Grzybowice – miejsce rekreacji i spacerów z trasami
rowerowymi, punktem widokowym, plażą trawiastą i terenem do zimowych zabaw.
Idealne miejsce dla rodzin, par lub osób szukających spokojnego azylu z własnym ogrodem, bez dodatkowych opłat i w doskonałej lokalizacji.
Zakres prac wykonanych przez dewelopera:
• Instalacje wod.-kan. zgodne z projektem
• Instalacja gazowa z ogrzewaniem podłogowym w całym mieszkaniu
• Okna trzyszybowe
• Ściany z pustaka ceramicznego
• Kominy z cegły klinkierowej
• Dach pokryty dachówką ceramiczną
• Drzwi zewnętrzne antywłamaniowe
• Rolety zewnętrzne sterowane elektrycznie
• Tynki maszynowe
• Wylewki cementowe
Lokalizacja:
Grzybowice to spokojna i przyjazna dzielnica w północno-zachodniej części Zabrza, zapewniająca
doskonałą komunikację z:
• Gliwicami,
• Tarnowskimi Górami,
• Centrum Zabrza.
W zasięgu kilku minut znajdują się:
• Sklepy i markety,
• Szkoła podstawowa, przedszkole i plac zabaw,
• Przychodnia, kościół i boisko sportowe.
Mieszkanie 02
Mieszkanie bezczynszowe z ogrodem –
Zabrze Grzybowice, ul. Rozwadowskiego
Prezentujemy Państwu na sprzedaż mieszkanie bezczynszowe o powierzchni 73,77 m² z
ogrodem, położone przy ul. Rozwadowskiego w Zabrzu-Grzybowicach, w niezwykle spokojnej i
zielonej części miasta.
To idealna propozycja dla osób szukających komfortu, przestrzeni i prywatności w otoczeniu
natury
🏠 Układ pomieszczeń:
• Wiatrołap 2/01 – 5,75 m²
• Korytarz 1/02 – 5,83 m²
• Pokój 1 1/03 – 6,78 m²
• Łazienka z WC 1/04 – 4,39 m²
• Pokój 2 1/05 – 8,82 m²
• Pokój 3 1/06 – 12,74 m²
• Salon z aneksem kuchennym
1/07– 27,32 m²
• Toaleta 1/08 – 2,14 m²
Do każdego mieszkania przynależy jedno miejsce parkingowe oraz prywatny ogród,
który stanowi doskonałą przestrzeń do wypoczynku, rodzinnych spotkań lub zabawy dla
dzieci.
✅ Najważniejsze atuty:
• Pełna własność – prosto od dewelopera,
• Bez czynszu! – oszczędność nawet kilkuset złotych miesięcznie,
• Własny ogród i miejsce parkingowe w cenie,
• Nowoczesny standard wykonania,
• Oddanie inwestycji: III/IV kwartał 2025 r.
• Cena mieszkania od 589 000 zł,
• Brak podatku PCC 2%!
Dodatkowym atutem
okolicy jest Geopark Grzybowice – wyjątkowe miejsce spacerów i rekreacji,
z trasami rowerowymi, punktem widokowym, plażą trawiastą i terenem rekreacyjnym dla całej
rodziny.
Idealne miejsce dla rodzin, par lub osób szukających spokojnego azylu z własnym ogrodem, bez dodatkowych opłat i w doskonałej lokalizacji.
Zakres prac wykonanych przez dewelopera:
• Instalacje wod.-kan. zgodne z projektem
• Instalacja gazowa z ogrzewaniem podłogowym w całym mieszkaniu
• Okna trzyszybowe
• Ściany z pustaka ceramicznego
• Kominy z cegły klinkierowej
• Dach pokryty dachówką ceramiczną
• Drzwi zewnętrzne antywłamaniowe
• Rolety zewnętrzne sterowane elektrycznie
• Tynki maszynowe
• Wylewki cementowe
Lokalizacja:
Grzybowice to spokojna i przyjazna dzielnica w północno-zachodniej części Zabrza, zapewniająca
doskonałą komunikację z:
• Gliwicami,
• Tarnowskimi Górami,
• Centrum Zabrza.
W zasięgu kilku minut znajdują się:
• Sklepy osiedlowe i markety,
• Szkoła podstawowa, przedszkole i plac zabaw,
• Przychodnia, kościół oraz boisko sportowe.
Mieszkanie 03
Mieszkanie bezczynszowe z dużym balkonem – Zabrze Grzybowice, ul. Rozwadowskiego
Prezentujemy Państwu na sprzedaż mieszkanie bezczynszowe o powierzchni 64,87 m² z dużym
balkonem, zlokalizowane na pierwszym piętrze w kameralnym, jednopiętrowym budynku przy ul.
Rozwadowskiego w Zabrzu-Grzybowicach – w bardzo spokojnej i zielonej okolicy.
To idealna propozycja dla osób ceniących komfort, przestrzeń i nowoczesne rozwiązania.
🏠 Układ pomieszczeń:
• Wiatrołap 2/01 – 15,28 m²
• Hol 2/02 – 3,10 m²
• Pokój 1 2/03 – 11,32 m²
• Pokój 2 2/04 – 8,99 m²
• Salon z aneksem kuchennym
2/05 i 2/06 – 22,07 m²
• Łazienka 2/07 – 4,11 m²
Do każdego mieszkania przynależy jedno miejsce parkingowe oraz przestronny
balkon, idealny do wypoczynku i spotkań na świeżym powietrzu.
✅ Najważniejsze atuty:
• Pełna własność – prosto od dewelopera
• Bez czynszu! – oszczędność nawet kilkuset złotych miesięcznie
• Duży balkon i miejsce parkingowe w cenie
• Nowoczesny standard
wykonania
• Oddanie inwestycji: III/IV
kwartał 2025 r.
• Ceny mieszkań od 499 000 zł
• BEZ PCC 2%!
• Oddanie inwestycji: III/IV kwartał 2025 r.
• Cena mieszkania od 589 000 zł,
• Brak podatku PCC 2%!
Dodatkowym atutem
okolicy jest Geopark Grzybowice – miejsce spacerów i rekreacji z trasami rowerowymi, punktem widokowym, plażą trawiastą i strefą wypoczynku dla całej rodziny.
Idealne miejsce dla rodzin, par lub osób szukających spokojnego azylu z własnym ogrodem, bez dodatkowych opłat i w doskonałej lokalizacji.
Zakres prac wykonanych przez dewelopera:
• Instalacje wod.-kan. zgodne z projektem
• Instalacja gazowa z ogrzewaniem podłogowym w całym mieszkaniu
• Okna trzyszybowe
• Ściany z pustaka ceramicznego
• Kominy z cegły klinkierowej
• Dach pokryty dachówką ceramiczną
• Drzwi zewnętrzne antywłamaniowe
• Rolety zewnętrzne sterowane elektrycznie
• Tynki maszynowe
• Wylewki cementowe
Lokalizacja:
Grzybowice to spokojna i przyjazna dzielnica w północno-zachodniej części Zabrza, zapewniająca
doskonałą komunikację z:
• Gliwicami,
• Tarnowskimi Górami,
• Centrum Zabrza.
W zasięgu kilku minut znajdują się:
• Sklepy osiedlowe i markety,
• Szkoła podstawowa, przedszkole i plac zabaw,
• Przychodnia, kościół oraz boisko sportowe.
Mieszkanie 04
Mieszkanie bezczynszowe 77,68 m² – Zabrze
Grzybowice, ul. Rozwadowskiego
Prezentujemy Państwu na sprzedaż mieszkanie bezczynszowe o powierzchni 77,68 m²,
zlokalizowane przy ul. Rozwadowskiego w Zabrzu-Grzybowicach, w spokojnej i zielonej okolicy.
To idealna propozycja dla osób, które cenią przestrzeń, wygodę oraz nowoczesny styl życia.
🏠 Układ pomieszczeń:
• Klatka schodowa 2/01 –6,70 m²
• Pomieszczeniegospodarcze 2/02 – 3,73m²
• Hol 2/03 – 5,16 m²
• Pokój 1 2/04 – 6,63 m²
• Toaleta 2/05 – 2,44 m²
• Łazienka 2/06 – 4,14 m²
• Pokój 2 2/07 – 8,82 m²
• Pokój 3 2/08 – 13,20 m²
• Salon z aneksem kuchennym 2/09 – 26,86 m²
Do każdego mieszkania przynależy jedno miejsce parkingowe, zapewniające komfort i
wygodę codziennego użytkowania.
✅ Najważniejsze atuty:
• Pełna własność – prosto od dewelopera
• Bez czynszu! – oszczędność nawet kilkuset złotych miesięcznie
• Nowoczesny układ pomieszczeń i wysoki standard wykonania
• Oddanie inwestycji: III/IV kwartał 2025 r.
• Cena mieszkania od 579 000 zł
• Brak podatku PCC 2%!
• Miejsce parkingowe wliczone w cene
Dodatkowym atutem
Dodatkową atrakcją okolicy jest Geopark Grzybowice, powstały w 2023 roku – idealne miejsce do spacerów i rekreacji. Znajdują się tam ścieżki edukacyjne, trasy rowerowe, punkt widokowy, plaża
trawiasta oraz zimowa górka saneczkowa
Idealne miejsce dla rodzin, par lub osób szukających spokojnego azylu z własnym ogrodem, bez dodatkowych opłat i w doskonałej lokalizacji.
Zakres prac wykonanych przez dewelopera:
• Instalacje wod.-kan. zgodne z projektem
• Instalacja gazowa z ogrzewaniem podłogowym w całym mieszkaniu
• Okna trzyszybowe
• Ściany z pustaka ceramicznego
• Kominy z cegły klinkierowej
• Dach pokryty dachówką ceramiczną
• Drzwi zewnętrzne antywłamaniowe
• Rolety zewnętrzne sterowane elektrycznie
• Tynki maszynowe
• Wylewki cementowe
Lokalizacja:
Grzybowice to spokojna i przyjazna dzielnica w północno-zachodniej części Zabrza, zapewniająca
doskonałą komunikację z:
• Gliwicami,
• Tarnowskimi Górami,
• Centrum Zabrza.
W zasięgu kilku minut znajdują się:
• Sklepy osiedlowe i markety,
• Szkoła podstawowa, przedszkole i plac zabaw,
• Przychodnia, kościół oraz boisko sportowe,
• Przystanek komunikacji miejskiej
Kontakt
Skontaktuj się z nami
Masz dodatkowe pytania? Zapraszamy do kontaktu